Real Estate Auction for Davies Trucking 1999 Ltd.24HF
4.79± Acres with Industrial Shop and Office
4.79± Acres with Shop that is well positioned on High Load Corridor Hwy 834
Auction begins in :
Sale Price
$2,010,000
***Equipment and contents will be sold by Team Auctions, in a separate dispersal sale Aug 31 to Sep 3 ID code for the dispersal sale is 24HH***
Property Summary:
- Legal Description
- Plan 7820796 Lot A
- Size
- 4.79± acres
- Property Taxes
- $29,204 (0)
- Property ID
- 24HF25001-001
- Municipal Address
- 6340-47 St.
- Municipality
- Tofield, AB
- Title
- Fee Simple
- Land Use Zoning
- HWY Commercial
- Deposit
- $50,000
- Possession
- Sep 27, 2024
- Closing
- Sep 26, 2024
Supporting Documents:
Phase 1 Report (PDF) Property Information Package (PDF)Property Detail:
Property Type
Commercial
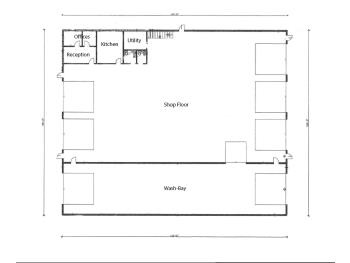
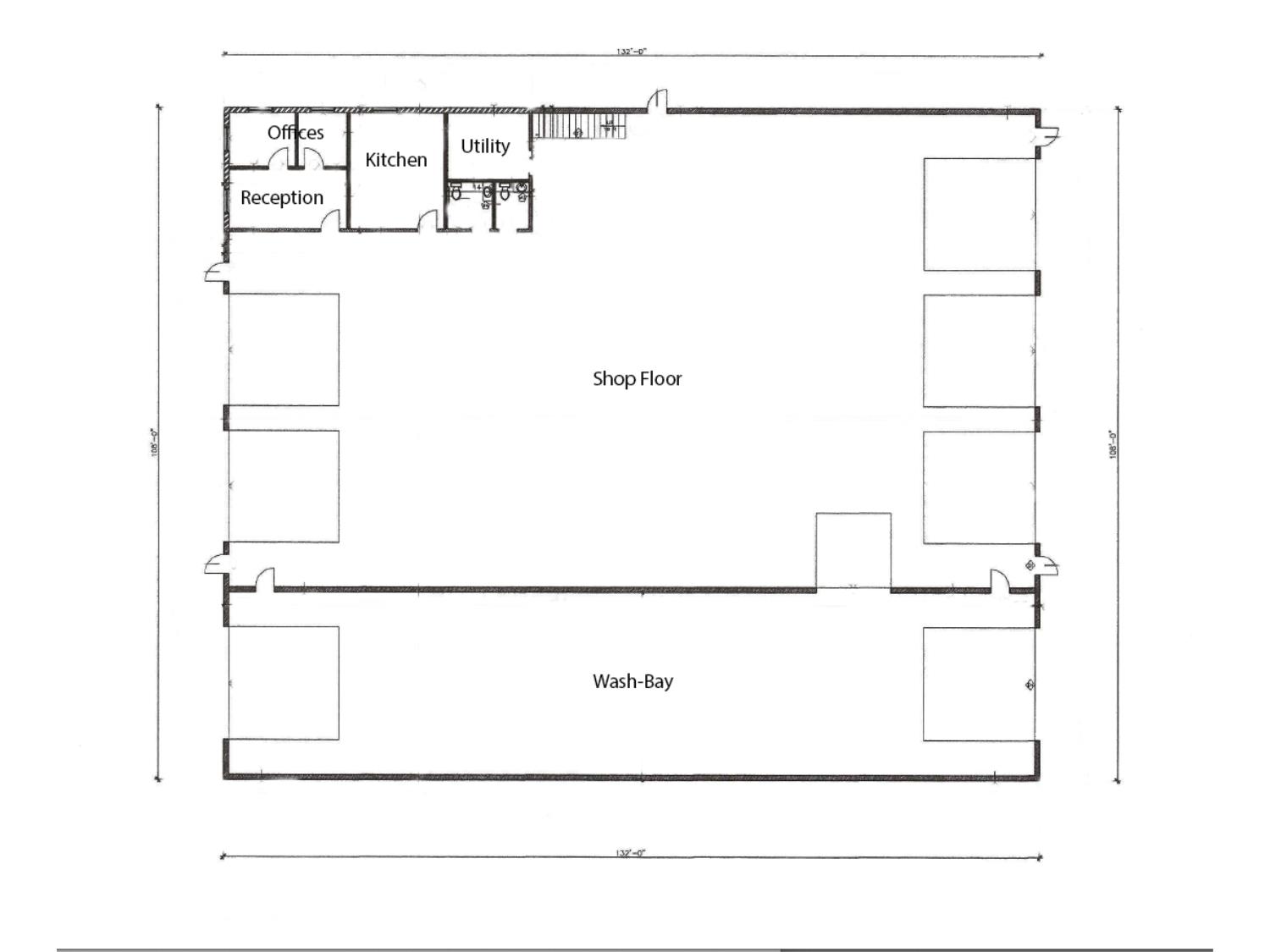
Floor Space
14300 sq ft
Year Built
2017
Garage
Shop
Parking
Front Drive Access, Off Street, Over Sized
Property Influences
- Commercial
- Fenced
- Gated
- Security system
Property Structures
- Shop
Property Notes
This shop and yard have been well maintained and are in immaculate condition.
Home Detail:
Heating
In-floor heat system in shop, Canuck heater system (model 400ENG Whitco)
Cooling
air conditioned in office area
Exterior
Metal
Roofing
Metal
Interior Notes
8" concrete floors, 20' ceiling clearance height
Additional Property Info
Industrial Shop Built 2017
- 13,300± Sq. Ft warehouse
- 1000± Sq. Ft office
- 1000±Sq. Ft mezzanine for storage
- Walls are insulated with Roxul
- 5HP two stage 80 gallon tank air compressor (17.2 CFM @ 175psi) mounted in mezzanine
- 20 ft clearance height
- In-floor heating in shop
- 7 ft x18 ft x18 ft oversize grade loading doors - electric
- 2 drive through bays
- 1 single door bay
- Sump
- Kitchen
- Reception room with two offices
- Air conditioning in office
- His & her washrooms
- **Blueprints can be viewed upon request
Wash Bay 130 ft x 30 ft
- Drive through bay
- Sump
- 2 pressure washer units
- Floor Drain
- 8 inch concrete floors
- Canuck heater systems model 400ENG Whitco, CSA water heater, model c2000-4ASD pumping module 4 GPM 2000 PSI
Yard
- Fully compacted and graveled yard that is suitable for heavy haul loads
- Ample parking
- Fully fenced and gated with security system
Services
Power
400 Amp, 240V
Service Notes
Make-up air, T5 lighting
Location
Legal
Note to Bidders
- When registering to bid you will be required to have a Letter of Confirmation of Funds from your bank. Letter of Confirmation must be on Bank Letterhead with your name & or company name & amount of funds you have access to that you wish to spend up to. This letter of confirmation will have to be emailed to TEAM Auctions.
- Internet Bidding Fees: 10% up to a max of $5,000 per item.
- If you are the successful bidder, to meet the obligations set by the federal government, you will be asked to verify your identification. You will also need to provide us with your lawyer info to complete the real estate transaction.
- Bidders must satisfy themselves as to the exact current acres, property lines and fence locations, building sizes, taxes and assessments, zoning and permitted uses & surface lease revenue details. Property titles are available upon request. The information provided is a guide only.
Highlights of Purchase Contract
Completion Day
Sep 27, 2024
Deposit
A non-refundable $50,000 bank draft or approved payment payable to MacMillan Team - RE/MAX Elite due from successful bidder upon close of bidding / signing of purchase contract. Cash and virtual currency will not be accepted.
Partial Terms and Conditions
Unreserved, Reserved and Buy It Now:
Some Real Estate may have reserved minimum bids. The Auctioneer, at its sole discretion has the right to or/not to advertise and/or notify the buyer as to whether the goods/and or Real Estate being offered in this auction are:
- UNRESERVED: Meaning the seller has agreed to accept the highest bid regardless of price. In this case any items and/or livestock and/or Real Estate offered will sell to the highest bidder regardless of price.
-
RESERVED: Meaning the seller has set a minimum price that must be met in order for the Real Estate to be deemed "sold" to the buyer. This minimum "Reserved" price may be indicated to the buyer as a "Reserve Price", "Starting Bid" or as "Subject to Owners Approval" or "not indicated or advertised in any way".
The seller and/or the auctioneer acting as the sellers agent may at any time:
- remove the "Reserve Price" or “Starting Bid” at any time and deem this auction " Unreserved"
- accept any bid, within 2 business days of the auction closing, that is lower than the "Reserve Bid"
- counter offer; any buyer within 2 (two) business days of the closing of the auction.
Your bid as a buyer will be recorded and will remain binding and in affect 2 (two) business days after such time the auction is closed.
You the buyer acknowledges and agree that bidding at this auction is the legal equivalent of a firm commitment and irrevocable offer to purchase, unless otherwise prohibited by law or otherwise noted in these buyer terms. Once you have placed a bid and the bid is accepted by the auctioneer you are obligated to complete the transaction.
-
SELLER’S RIGHT OF REFUSAL IN AUCTION SALES
In a real estate auction, a Seller’s Right of Refusal allows the seller, court or bank to review the highest bid at the conclusion of the auction and decide whether to accept, reject, or counter the offer. The property is not considered sold until the seller formally approves the highest bid.
For bidders, this means that submitting the highest bid does not automatically guarantee a purchase. All bids are treated as offers subject to seller, court or bank approval. If the seller issues a counteroffer and the highest bidder declines, the seller reserves the right to approach the next highest bidder or any other bidder in order of the auction results.
While auction sales are typically conducted without conditions, this right allows the seller time to review any conditions that may be included in an offer and assess whether they could delay or prevent a successful closing. This process helps protect the integrity of the sale while maintaining transparency for all participants.
- UNCONDITIONAL BUY IT NOW OPTION (when offered): The contract signing and deposit will be required before property is marked as sold. Standard bidder’s fees will apply.
- AGENT OF THE SELLER: Real Estate Brokerage acts only as agent of the seller and not as agent of the Buyer. They will provide prospective buyers with all facts known to the agent that will or may affect the marketability or value of the property.
- NO WARRANTY: The Buyer shall accept the Property as-is where-is and specifically agrees that neither the Seller, Auctioneer or Realtor makes any representations or warranties of any kind as to the condition or fitness of the Property, environmental or otherwise, or any improvements thereon.
- It is the RESPONSIBILITY OF ALL BIDDERS to review all information provided, including “Property Information Package” from the Real Estate Brokerage and the terms of this auction. All information provided is meant as a guide only. Bidders shall have satisfied themselves as to the descriptions, location and condition of the property prior to bidding. If clarification is required, it is the bidder’s responsibility to obtain clarification from Real Estate Brokerage prior to bidding.
- GST: Bid price does not include any applicable GST unless announced otherwise by auctioneer.
- DEPOSIT: Immediately at the close of bidding the successful bidder will make a NON REFUNDABLE deposit payable to the real estate brokerage (as listed in the Property Information Package) in the form of a bank draft or other approved payment. Amount is listed in Property Info Package/or as announced by auctioneer.
In cases where a seller, financial institution, or court retains a right of refusal or approval, any negotiated purchase price, winning bid, or Buy It Now agreement is subject to final acceptance by that party.
Where such approval is required, the buyer’s deposit will not be collected at the time of offer or bid submission. The deposit will only be collected and held in trust by the listing brokerage once the negotiated purchase price or winning bid has been accepted by the party holding the right of refusal.
Until such acceptance occurs, the proposed transaction remains conditional upon approval, and neither the brokerage nor the seller is obligated to proceed with the sale.
- PURCHASE CONTRACT: The Real Estate Purchase Contract that applies to each property will be available for inspection prior to the auction. Title(s) will be clear of encumbrances except those which are to remain on the title. All bidders agree that, should their bid be accepted, they will complete and be bound by the terms of the purchase contract. Buyer will pay the balance of the purchase price to their lawyer on or before Completion Day. Possession will be in accordance with the terms of the Purchase Contracts. Note: These contracts will not be subject to any buyer’s conditions.
**TEAM SEKURA AUCTION MAIN SALE TERMS ALSO APPLY.
Get in Touch
For more information about the property
please contact the listing agent.
Listing Agent
MacMillan Team - RE/MAX Elite
Bob MacMillan

For more information about the auction process
please contact us.
Team Auctions Contact
Real Estate Division
Office






























































